![]()
Description
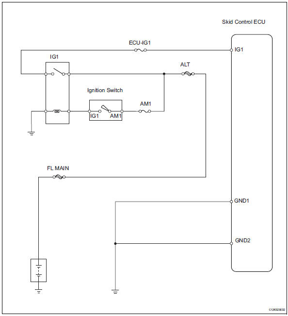
When there is an abnormality in the power supply circuit of the brake actuator (skid control ecu), the skid control ecu sets a dtc and the operation is prohibited by the fail-safe function. This dtc is set when the voltage supplied to terminal ig1 is outside the dtc detection threshold, due to abnormalities of the battery, power source circuits or charging circuits such as the alternator circuit.
The fail-safe function is canceled when the voltage to terminal ig1 returns to normal.

Wiring diagram

Inspection procedure
Standard resistance:
below 1 

Standard voltage: 11 to 14 v


Standard voltage 


Standard resistance 

Result 

Replace abs and traction actuator assembly
Stuck in deceleration sensor
Master cylinder pressure sensor malfunctionDriver side seat belt warning light does not operate
Description
When the ignition switch is on, the center airbag sensor transmits front seat
inner belt status signals to
the combination meter through the can bus line. If the driver seat belt is not
fastened, the combination
meter blinks the driver side seat belt warning light. If the seat bel ...
Camshaft position sensor "a" circuit (bank 1 or single sensor)
Description
The camshaft position (cmp) sensor consists of a magnet and an iron core
which is wrapped with copper
wire, and is installed onto the cylinder head. When the camshaft rotates, each
of 3 teeth on the camshaft
passes through the cmp sensor. This activates the internal magnet in ...
Headlight switch
The headlights can be operated
manually or automatically.
Turning on the headlights
Operating the switch
turns on the lights as follows:
U.S.A. (Type A)
The side marker, parking,
tail, license plate, instrument
panel lights, and
daytime running lights turn on.
The headlights and all
light ...